当社は、平成9年より平林地区のまちづくりに携わってきましたが、この度、ようやく事業化に至りました。
全国で2例目の会社施行による土地区画整理事業としても注目を集めていますが、今後も無事に事業を遂行し、まちづくりに貢献できるように努めて参ります。
事業紹介
平林地区は、大正地区復興土地区画整理事業により戦災復興・高潮対策とあわせて貯木場が集約され、1980年代まで水面貯木場として有効活用されていましたが、90年代に入り、木材の流通形態が原木輸入から加工品輸入と変化したことに伴い、水面貯木場としての需要は減少し、今日まで低未利用の状況が続いています。
当該事業は、この平林地区のうち第4貯木場の東において、遊休地化した水面貯木場を埋立造成し宅地化した上で、大規模工場施設等の立地を可能とする大規模区画と既存の木材産業の移転・集約を可能とする小規模区画を創出することで、地区の再整備を計画しています。
事業の特徴として、地権者および地元木材業者を中心とする一般社団法人が出資する平林土地区画整理株式会社を事業主体として設立し、地主と木材業者の連携のもと事業が進められています。(全国で2例目となる会社施行による土地区画整理事業。)
また、水面貯木場の埋立造成においては、大阪府道大和川線建設事業における開削トンネル工事に伴い発生する開削土を活用することで、当該事業及び大和川線建設事業の両方の事業費の軽減を実現しています。
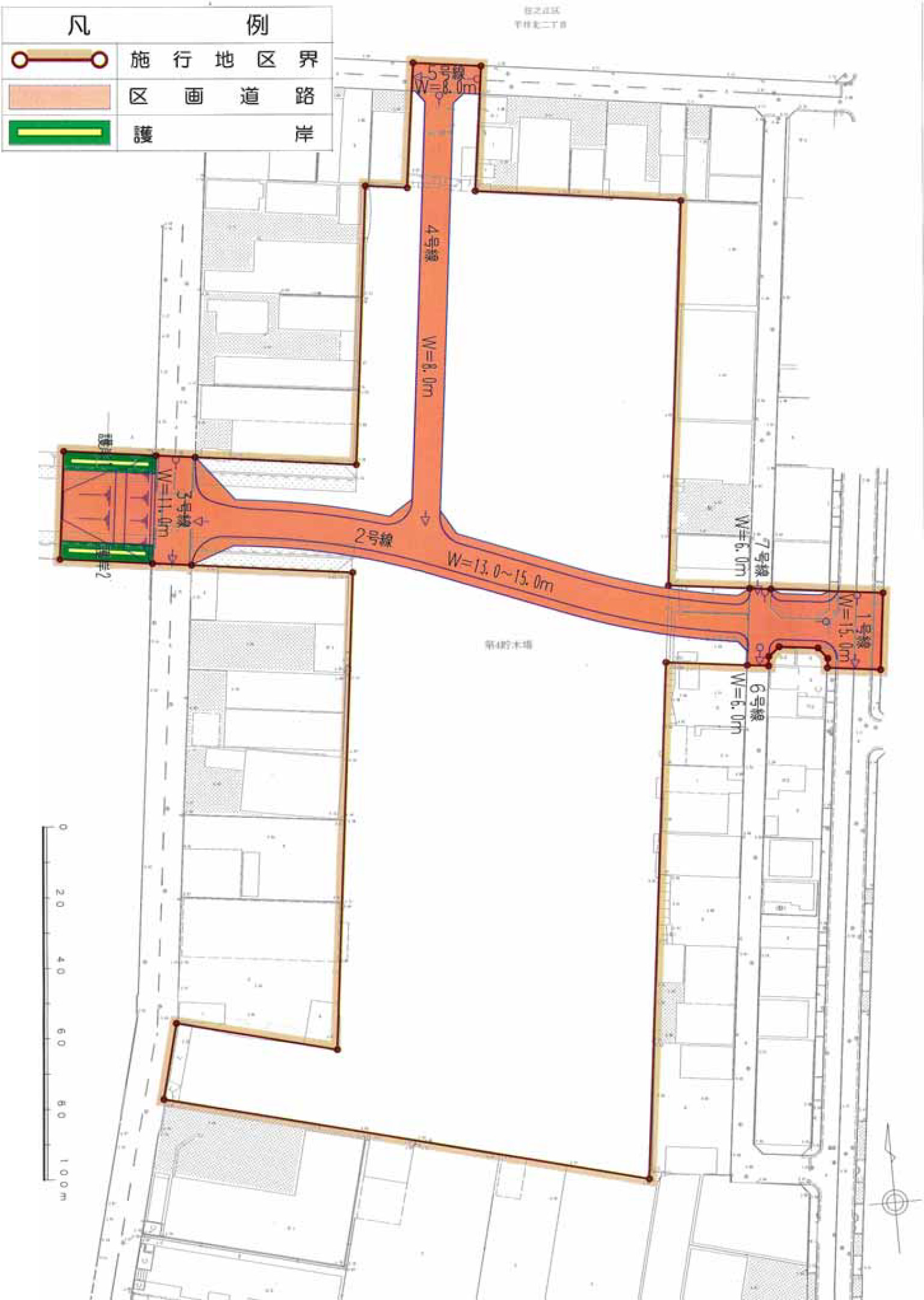
事業概要
名称
平林四号池東地区土地区画整理事業
所在地
大阪市住之江区平林北
用途地域等
工業専用地域、臨港地区(工業港区)
施行者
平林土地区画整理(会社施行)
工事受託
阪神高速技術(株)
工事施工
東洋建設(株)
施行地区面積
約2.97ha
担当業務
事業推進コーディネート、事業計画作成、
区画整理会社運営支援、土木設計、換地設計
担当業務(設計)
設計・監理
事業進捗情報
2008年10月
平林土地区画整理(株)設立
2009年12月
施行地区公告
2010年 5月
事業認可申請
2010年 7月
事業認可、安全祈願祭
2010年 8月
工事着工
2011年 9月
仮換地指定
2012年12月
事業計画変更
2014年 2月
工事竣工
2014年 3月
事業計画変更
2014年 4月
道路供用開始
2014年11月
事業計画変更
2015年 2月
換地計画認可・換地処分通知
2015年 3月
事業計画変更
2016年 3月
事業終了認可
